Pending, current and completed; scroll down to view...
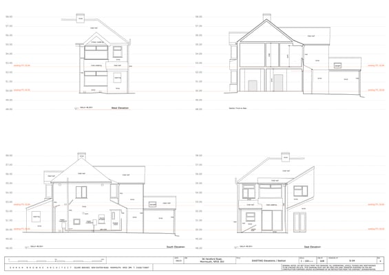
    C18th Cottage, South Gloucestershire.
Substantial alterations and part-replacement, alongside an EnerPHit standard upgrade.
Planning granted March 2024 (planning application drawings of existing and proposed elevations below).
    Construction planned for 2025.
What is EnerPHit? A standard for an economically and ecologically optimal energy retrofit, for old buildings.
    Development Land. Cambridgeshire.
Full planning approval for residential development on former commerical/industrial site, adjoining agricultural land.
    CGI images for marketing by 'White Chalk' 2023 - https://www.whitechalk.co.uk/
New Dwelling.
 
    
Monmouthshire: planning approval granted 2020 within a conversation area and within the grounds of a listed building: construction 2020-2022.
Partially buried house designed to Passivhaus principles. Planning approval drawing and site progress images.
Extension to 1930s Semi-detached house in a Conservation Area.
    Monmouthshire planning approval granted summer 2022. On site 2024.
Existing.
    Proposed.
Replacement Dwelling. Passivhaus.
Forest of Dean planning approval granted summer 2022.
Located adjoining a conversation area and replacing a 1973 house in poor condition. Passivhaus standard.
Planning approval drawings below.
Enlargement of cottage.
    South Gloucestershire within a conservation area: planning approval 2021.
Conversion of rural outbuilding to a Residential Annexe and a separate Holiday Let.
    Monmouthshire: Certificate of Lawful Development (no planning approval required) submitted for the external changes and Planning approval for the new uses -
    appproved 2021.
Replacement Dwelling.
    Gloucestershire: replacement dwelling in woodland setting designed to Passivhaus
    principles. Approved planning drawings 2019 and working model below.
New Annexe in the grounds of an existing house.
Gloucestershire: for multi-generational living; re-construction/conversion of former outbuildings. Under construction 2018-2020.
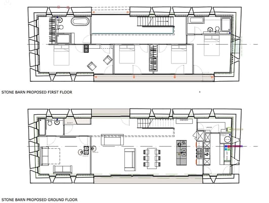
Enlargement of cottage.
Herefordshire: planning approval 2019. Pre-Construction 2020. On site 2022-2024.
    Inserting a Lift.
    For a house constructed in 2015 and built into a steeply sloping garden; the addition of a new lift to improve accessibility.
    Rising from the ground floor hallway to the flat roof and garden area at the level above, via its own new lobby and sunspace, it is marvellously enhanced by the owner's choice of colours and
    finishes. Monmouthshire 2018.
New Dwelling. Passivhaus. Small infill plot.
    Monmouthshire. Planning approval 2020. Planning drawings and working model.
Barn Conversion and Passivhaus Standard New Home.
    Herefordshire
Phase I: converting the barn (bottom of picture) 2013
    Phase II: construction of New Outbuilding 2019
    Phase III: New home with Passivhaus certification, replacing cottage (middle of aerial view) 2020/2021.
 
    
Phases II and III. Progress 2019/2021.
    Phase I. Barn Conversion.
New Family Home in former orchard garden of existing house
    Monmouthshire. 2017-2018.
Barn Conversion, Herefordshire.
    Near-Passivhaus standard, low energy conversion. 2017
Sunken Courtyard House
New build plot sold 2016; construction by later developer-owner 2019.
Barn Conversion to Holiday Let. Brecon Beacons 2014
BBC DIY SOS Big Build
The smallest projects can make the biggest changes. BBC DIY SOS Big Build episode broadcast 29th March 2017.
(link for 30-day iPlayer - http://www.bbc.co.uk/iplayer/episode/b08l600b/diy-sos-series-27-10-the-big-build-monmouth ) - combined voluntary efforts in a small town.
 
    
Transforming without rebuilding.
    Ealing, West London. From the Drury Browne archives - 2002. One 'before' and four 'after'.
Alterations to c.18th/19th house in Herefordshire.
Planning approvals 2012-14
